Este site utiliza cookies para permitir a mudança de língua e o armazenamento dos seus imóveis favoritos. Ao utilizar este site, concorda que o mesmo utilize cookies.

Moradia para recuperar, com projeto para T4 no Centro da Figueira da Foz, com Jardim e Pátios

160.000€



Referência

MO20222

Natureza

Venda

Tipo de Imóvel

Moradia

Subtipo de Imóvel

Moradia em Banda

Tipologia

T4

Estado

Por Recuperar

Certificado energético

Em execução

Ano

1950


Distrito

Coimbra

Concelho

Figueira da Foz

Freguesia

Buarcos e São Julião

Código Postal

3080


Área Útil

92 m2

Área Bruta

260 m2

Área de Terreno

168 m2

Partilhar



Contactar Imobiliária

*Preenchimento obrigatório
Ao clicar em 'Enviar', declara que aceita a nossa Política de Privacidade.
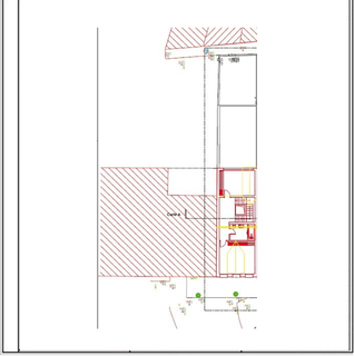
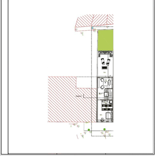
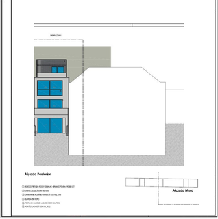
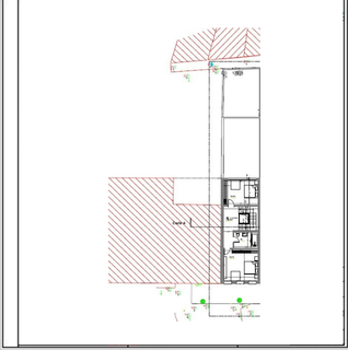
Moradia para recuperar com projeto de arquitetura para casa T4 no Centro da Figueira da Foz com Jardim e Pátios – 4 Pisos.

Esta moradia pode ser recuperada ou feita de novo com este projeto que aqui apresentamos:

No 1º piso, a entrada faz-se pela garagem, garantindo comodidade no dia a dia. Neste piso encontra ainda um WC com zona de lavandaria no corredor e uma ampla área social em conceito open space, com sala e cozinha integradas, com acesso direto ao jardim – perfeito para momentos de lazer e convívio.

O 2º piso oferece um ambiente mais reservado e acolhedor, com uma sala de estar com acesso a um agradável pátio, ideal para leitura ou trabalho. Conta ainda com uma suíte confortável, equipada com casa de banho privativa e closet.

No 3º piso, encontram-se dois quartos espaçosos, apoiados por uma casa de banho completa comum.

Por fim, o 4º piso dispõe de mais uma suíte, com closet e casa de banho privativa, bem como acesso a um pátio, proporcionando um espaço adicional exterior com excelente exposição.



A Casa Dinâmica – Mediação Imobiliária Lda

É uma imobiliária situada em Buarcos – Figueira da Foz. Com a nossa vasta experiência no ramo, acompanhada pelo nosso dinamismo, colocamos ao dispor dos nossos clientes todos os nossos serviços, como já é habitual.
Tratamos do seu processo de crédito habitação e de todo o processo bancário de aquisição do imóvel, do primeiro ao último detalhe com o profissionalismo e idoneidade que nos compete.
Estamos situados nesta bela cidade que é um concelho geograficamente privilegiado, com mar, serra e o rio Mondego.
A 39Km Coimbra 
A 125Km Porto 
A 190Km Lisboa
A mesma possui praias com distintas condições naturais para que pratique o seu desporto favorito, tais como: vela, surf, windsurf, kitesurf, jet ski, e bodyboard.
Com eventos desportivos e culturais a acontecer todo o ano não pode deixar de querer viver aqui e conhecer melhor toda a região. Temos então o tão famoso carnaval da Figueira da Foz, o São João, o RFM Somnii, a feira medieval, o campeonato de rugby, o futebol praia, o triatlo, as regatas, e as provas de remo, entre tantas outras atividades e eventos.
Com uma ciclovia e um calçadão únicos permitindo assim a prática de desportos ao ar livre e em segurança e ainda com um skatepark seguro e único.
Com a serra da Boa viagem preparada para a prática de desportos mais radicais tais como : Asa delta, trailer, caminhadas, BTT e Downhill.
O concelho tem um população de cerca de 60 mil habitantes tendo ao dispor um Hospital Distrital, e uma vasta rede de cuidados de saúde. Na cidade existe ainda uma rede de alojamento diversa tais como, hotéis, hostels, alojamento local, parque de campismo e turismo de habitação.
Encontra ainda na cidade o famoso Casino, centro de artes e espectáculos, museu municipal Dr. Santos Rocha, Forte de Santa Catarina, Palácio Sottomayor e as belíssimas Salinas e o museu do sal situados do outro lado da ponte.
A nível cultural e lazer existem vários pontos com igrejas e capelas e vários espaços comerciais.
A Figueira da Foz é uma cidade em que todos os meses acontece algum evento.
Com excelentes restaurantes para degustar os melhores pratos da região, tais como feijoada de búzios, arroz de marisco, rodízio de marisco, caldeirada à pescador e muitos mais…
Viver na Figueira da Foz, fá-lo-á sentir-se seguro de dia e de noite ….
Excelente local para viver, crescer e investir!


Geral
VistasCidade:Sim
GeraisNº de Casas de Banho:4
GeraisNº de Terraços:2

Este imóvel não tem áreas definidas.

Imóveis
Semelhantes

Moradia
Venda
MORADIA T4 NOVA

600.000€

Moradia T4 Nova Geminada em Buarcos – Figueir...

600.000€

Coimbra / Figueira da Foz / Buarcos e São Julião


Ref: MO20108

Ref: MO20108

209 m2

4

5

Moradia
Venda
Moradia T4 a 8 min. da praia

457.000€

Moradia T4 com Piscina de Água Salgada e a 8 ...

457.000€

Coimbra / Figueira da Foz / Tavarede


Ref: MO20061

Ref: MO20061

388 m2

4

3

Sim

Moradia
Venda
MORADIA T5 NOVA

630.000€

Moradia T5 Nova Geminada em Buarcos – Figueir...

630.000€

Coimbra / Figueira da Foz / Buarcos e São Julião


Ref: MO20107

Ref: MO20107

224 m2

5

5