Este site utiliza cookies para permitir a mudança de língua e o armazenamento dos seus imóveis favoritos. Ao utilizar este site, concorda que o mesmo utilize cookies.

Apartamento T1 com terraço Novo no Cais da Figueira da Foz

205.000€



Referência

AP20139

Natureza

Venda

Tipo de Imóvel

Apartamento

Tipologia

T1

Estado

Em Projecto

Certificado energético

A

Ano

2026


Distrito

Coimbra

Concelho

Figueira da Foz

Freguesia

Buarcos e São Julião

Código Postal

3080


Área Útil

44 m2

Área Bruta

44 m2

Área de Terreno

0 m2

Partilhar



Contactar Imobiliária

*Preenchimento obrigatório
Ao clicar em 'Enviar', declara que aceita a nossa Política de Privacidade.
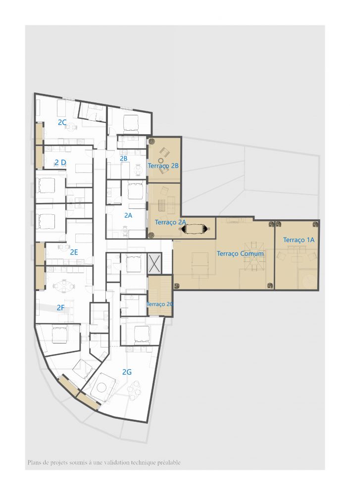
Apartamento T1 com terraço (2A) Novo no Cais da Figueira da Foz – Edifício Cais

Situado na Cais de Alfândega, a apenas 50 metros da Marina da Figueira da Foz, o Edifício Cais é um projeto residencial exclusivo, pensado para quem valoriza localização premium, conforto moderno e tecnologia integrada.

● Vista panorâmica para a marina
● Edifício totalmente renovado com reforço estrutural
● Layouts modernos e varandas privadas
● Cozinhas equipadas com eletrodomésticos Bosch
● Casas de banho com equipamentos Grohe
● Sistema completo de domótica
● Chão radiante Elétrico e ar condicionado Mitsubishi
   Isolamento com Lã de Rocha com 7 cm
● Blackouts elétricos e iluminação ajustável
● Certificação energética A
● Terraço comum com zona de lazer
● Apoio na obtenção de licença AL

Um projeto que combina design contemporâneo, eficiência energética e elevado potencial de valorização, ideal para viver junto ao mar ou investir numa das zonas mais procuradas da cidade.

- 50 m da marina
- 300 m da praia
- 2 min a pé de cafés e restaurantes
- 3 min a pé de supermercados
- 5 min a pé de escolas

Conclusão prevista: setembro de 2026

- Lages novas

MAPA DE ACABAMENTOS  -  EDIFÍCIO CAIS
Sala, quartos:
Pavimento: Pavimento Vinílico com 1225x180x5.5.com tela térmica e acústica,
Rodapés de 10cm.
Paredes: Reboco e estuque a pintar
Tetos: Gesso cartonado a pintar
Iluminação: Fita led (regulável em intensidade e cor quente e frio) embutida no
teto + lâmpada de teto suspensa
Pintura: Robbialac

Casas de banho:
Pavimento: Pavimento Vinílico com 1225x180x5.5.com tela térmica e acústica, Rodapés de 10cm.
Paredes: Pavimento cerâmico 280/220
Teto: Gesso cartonado a pintar
Louças sanitárias: Sanitas embutidas Grohe com torneiras de duche higiénicas Grohe
Torneiras: embutidas Para Duche e lavatórios Marca Grohe
Espelho: com Luz LED e Anti embaciamento
Iluminação: Fita led (regulável em intensidade e cor quente e frio) com sensor de presença
Pintura: Robbialac especial cozinhas e WC

Cozinha:
Pavimento: Pavimento Vinílico com 1225x180x5.5.com tela térmica e acústica,
Rodapés de 10cm.
Paredes: Reboco e estuque a pintar
Teto: Gesso cartonado a pintar
Torneiras: Misturadora extensível
Armários: Cozinha com interior em branco 9010 top face, frentes e acabamentos
em W1200 e H1385, com leds embutidos nos moveis altos (sensor de presença)
Todos os módulos são até ao teto
Bancadas: Tampo em Silestone com 2 cm de espessura acabamento Polido White
Storm, Revestimento de parede com as mesmas dimensões do tampo com 1.2 cm
de espessura
Eletrodomésticos: Da marca Bosch, Placa de indução, forno, Exaustor, frigorifico,
máquina lava-louça, Máquina lava-roupa e seca-roupa
Iluminação: Fita led (regulável em intensidade e cor quente e frio) embutida no
teto e nos moveis da cozinha com sensor de presença
Pintura: Robbialac especial cozinhas e WC

Revestimentos exteriores:
Paredes edifício: Fachada Branco
Janelas, portas de entrada, portas e roupeiros interiores:
Janelas: PVC Branco vitragem duplo 22mm de gaz argon, com perfil de 82 mm e Oscilobatente
Persianas: Blackouts interiores elétricos
Portas Entradas apartamentos: Porta de entrada 2100x1000 com fechadura
conectada inteligente e digital
Exterior a definir, pelo interior forradacom W1200 e Ferragens JNF Cromado Satinado, acabamento 96
Exterior Madeira W 1200, Interior 9010 Ferragens JNF Cromado Satinado acabamento 96
Portas interiores: Portas interiores em madeira CPL Branco 9010 com dobradiça
Pivotante escondida no teto e no chão com altura até o teto e largura 90-80-70 cm
Ferragens JNF Cromado Satinado
Roupeiros: Roupeiro com interior em linho, frentes e acabamentos em W1200, 3
portas de abrir, Led na lateral de cada módulo (no sentido oposto das dobradiças)

Corredor comum:
Pavimento: Vinílico
Paredes: Revestimento de parede em madeira W1200 para parede de quadro
elétrico. Inclui porta para quadro elétrico
Teto: Gesso cartonado a pintar
Iluminação: Fita led embutida no teto
Pintura: Robbialac
Terraços comuns:
Churrasqueira com lava louça e bancada de trabalho
Mesas de jantar
Espreguiçadeiras
Espaço criança
Equipamentos e instalações:
Ar condicionado em cada quarto, sala e cozinha: marca Mitsubishi
Chão radiante
VMC com sensor de presença
Pré-instalação para paneis solares
Sistema de domótica: Porta de entrada, Iluminação, aquecimento, ar condicionado,
persianas, videoporteiro, e todos os eletrodomésticos, speakers Bose de teto
Interruptores: Inteligentes, conectados e de tocar
Videoporteiro: marca Fermax ou Bticino (compatível domótica e Alexa)
Termo acumulador: Bosch
Elevador Liftech com carga max 350KG
Certificado energético. A

Este imóvel não tem características definidas.

Este imóvel não tem áreas definidas.

Imóveis
Semelhantes

Apartamento
Venda
APARTAMENTOS NOVOS

235.000€

Apartamento T0 Novo no Cais da Figueira da Fo...

235.000€

Coimbra / Figueira da Foz / Buarcos e São Julião


Ref: AP20131

Ref: AP20131

58 m2

Apartamento
Venda
EXCELENTE INVESTIMENTO

190.000€

Apartamento T2 na rua Joaquim Sotto Mayor - F...

190.000€

Coimbra / Figueira da Foz / Buarcos e São Julião


Ref: AP20147

Ref: AP20147

90 m2

2

1

Em execução

Apartamento
Venda
RESERVADO

177.500€

Apartamento T2 em Tavarede, Figueira da Foz

177.500€

Coimbra / Figueira da Foz / Tavarede


Ref: AP20146

Ref: AP20146

62 m2

2

1